Woodland Crescent, Milford Haven, SA73
Pembrokeshire
£110,000 Guide Price
Property features
- Full planning permission for detached four-bedroom bungalow
- Modern layout with generous off-road parking included
- Quiet yet accessible location in Milford Haven
- Close to marina, coastal paths, waterway and local amenities
Summary
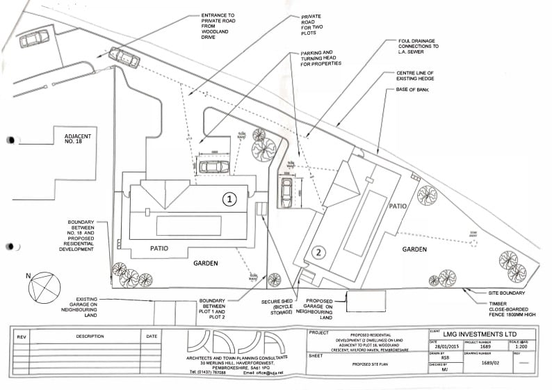
A superb opportunity to acquire one of two building plots located at the bottom of Woodland Crescent in Milford Haven, enjoying views over Milford Haven Pill and the Cleddau Estuary, Conveniently located within easy reach of the town’s amenities, the plot benefits from access to local shops, schools, parks and a nearby woodland nature walk.
Description
BUILDING PLOT
Full planning permission has been granted for the construction of a detached four-bedroom bungalow, designed to provide well-proportioned accommodation with modern living in mind. The proposed design also allows for generous off-road parking to the front. A rare chance to create a bespoke home in a quiet yet accessible setting.
Situated in the serene town of Milford Haven in picturesque Pembrokeshire, this residence is ideal for those seeking a peaceful life within a vibrant community. The area blends natural beauty with cultural opportunities, with Milford Marina close by offering a variety of dining and entertainment options. This setting is superb for those who value tranquil settings and are eager to explore the region’s rich maritime history and scenic coastal paths, making it an ideal home for nature lovers and cultural enthusiasts alike.
We are advised that no services are currently connected to the plots.
Planning Reference: 14/1175/PA
Details
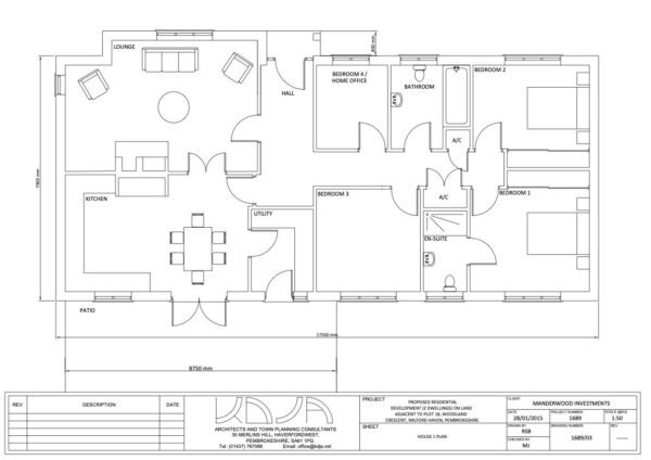
Hallway
Lounge
Kitchen
Utility Room
Bedroom One
En-Suite Shower Room
Bedroom Two
Bedroom Three
Bedroom Four / Study
Family Bathroom