Search Properties

Penrhiw, Trewent Hill, Freshwater East, Pembroke, SA71

Pembroke

£500,000 Guide Price

5 x 3 x
Department:
Sales
Reference:
30086113
Type:
Detached Bungalow
Availability:
For Sale
Tenure:
Freehold
Council Tax Band:
F

Property features

  • Substantial five bedroom coastal residence occupying an elevated position with sea views.
  • Spacious and versatile accommodation with adjoining annexe for extended family or guest use.
  • Impressive open-plan living space with sliding doors opening towards the front elevation and sea views beyond.
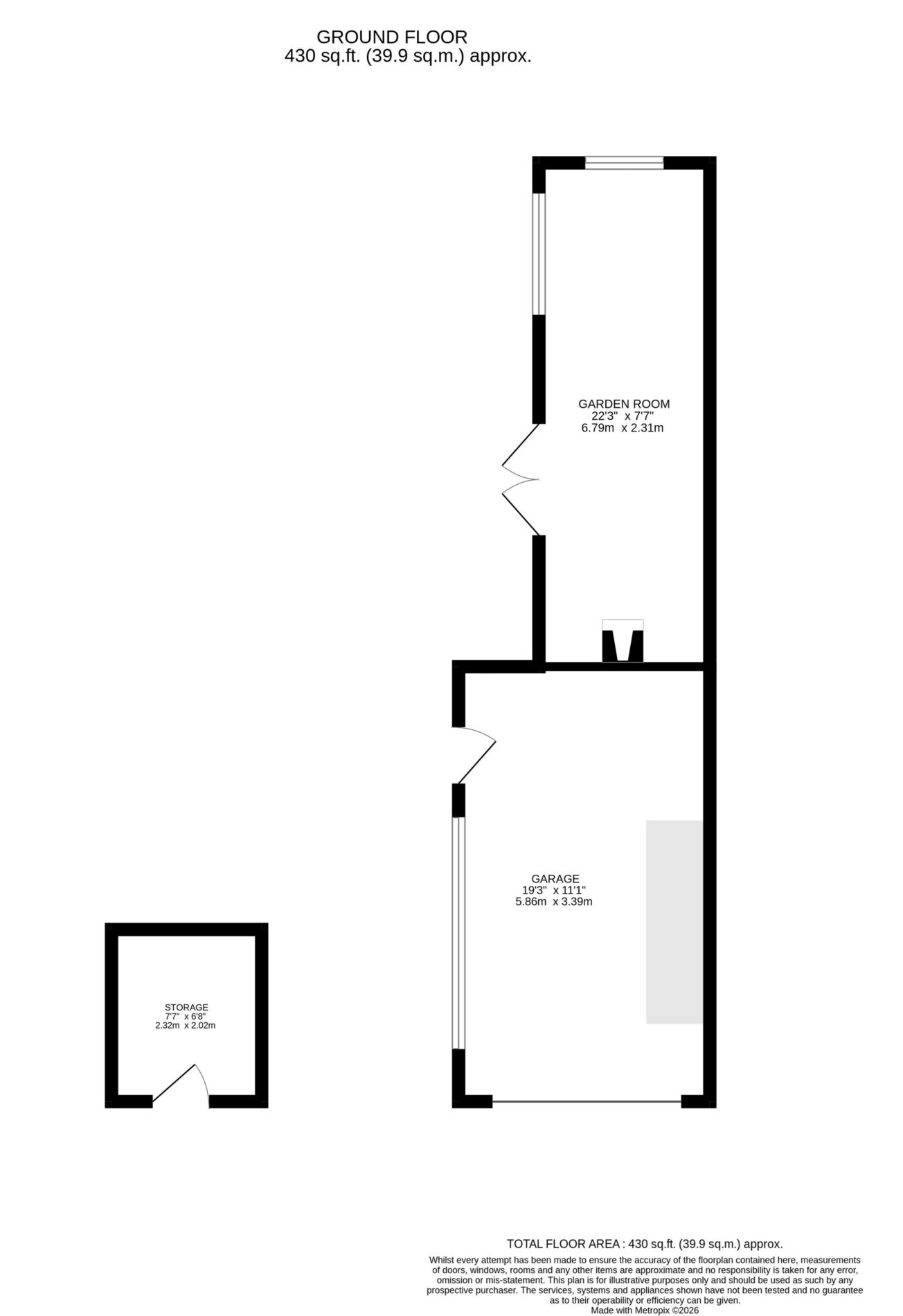
  • Well-maintained gardens featuring a detached garden room with wood-burning stove and separate outdoor swim spa.
  • Detached garage and private driveway offering off-road parking for multiple vehicles.
  • Sought-after coastal location within Freshwater East, just a short walk from the beach and coastal paths.
  • No onward chain.

Summary

Occupying an elevated position within the highly regarded coastal village of Freshwater East, Penrhiw is a substantial five bedroom residence enjoying sea views and a short walk to the beach. The property offers spacious and versatile accommodation, thoughtfully arranged to suit modern family living, with the added benefit of an adjoining annexe ideal for extended family, guest use or supplementary income. Set within attractive gardens and further enhanced by a garden room, swim spa, garage and private parking, Penrhiw presents a rare opportunity to acquire a home of genuine flexibility in an exceptional coastal setting.

Description

**Open Home | Saturday 2nd May 2026 | 10:00am - 11:00am** (By Appointment Only)

The Story of a Much-Loved Coastal Home...

“Moving to Penrhiw in 2004 was one of the best decisions we made as a family. We were keen to be closer to relatives in Freshwater East, whilst giving our young children the opportunity to grow up surrounded by the coast and countryside. From the moment we arrived, it felt like home, and over the years it has provided us with a wonderful lifestyle in one of Pembrokeshire’s most desirable seaside villages.

Occupying an elevated position, Penrhiw enjoys lovely sea views and a setting just a short walk from the beach. We have spent countless days making the most of everything the area has to offer, from beach walks with the dog and kayaking on the water, to fishing trips and simply enjoying quality time outdoors. The coastal scenery and the sense of community in Freshwater East have made living here incredibly special.

The house itself has adapted beautifully to family life. With five generous bedrooms and three bathrooms, it has always offered the space and practicality we needed, whilst still feeling warm and welcoming. The open-plan living, dining and kitchen area has very much been the hub of the home, where family and friends naturally gather. The sliding doors to the front allow the views to be enjoyed throughout the seasons, whether relaxing by the fire in winter or opening the room up on warmer days. The kitchen has been at the centre of daily life, complemented by a useful utility and shower room that has proved invaluable over the years.

We have taken great pride in improving and modernising the property during our time here, ensuring it remained both comfortable and functional. One of the most valuable features has been the adjoining accommodation, which has offered real flexibility. Initially considered for family use, it later became a successful holiday let, demonstrating the versatility of the layout. Equally, it could be ideal for multi-generational living or guest accommodation.

Outside, the gardens have brought us just as much enjoyment as the house itself. The patio has been a wonderful place for summer gatherings, while the garden room with its wood-burning stove has been used for hobbies, quiet relaxation and entertaining alike. The swim spa has been a fantastic addition and something we have enjoyed throughout the year. With parking for several vehicles and a detached garage, the practical elements of the property have always matched the lifestyle it offers.

Penrhiw has been a happy and much-loved family home where so many memories have been made. Whilst we are now moving to be closer to family once again, this house will always hold a special place in our hearts. We hope the next owners will enjoy everything it has given us, from the space and flexibility of the home itself to the exceptional coastal setting that makes it so unique. We are certain it will offer them many happy years and treasured memories of their own.”

Additional Information:

We are advised that the property benefits from mains services, together with 16 installed solar panels. Heating is provided via an LPG central heating system, with drainage to a private septic tank. Electric vehicle charging point installed.

Local Authority:

Pembrokeshire County Council - Band F (£2,495.94)

What3Words:

///tinned.weary.shame

Details

Hallway
Composite front door opening into a welcoming entrance hall with engineered oak flooring, staircase rising to the upper level and three integrated storage cupboards.

Lounge
4.32m x 3.39m (14’2” x 11’1”)
A well-proportioned reception room with parquet flooring and ample space for seating arrangements. Feature log burner set on a slate hearth, sliding patio doors opening to the front patio and garden with sea views, and a distinctive Welsh dragon stained glass hexagonal window to the front aspect.

Kitchen / Diner
3.63m x 3.53m (11’11” x 11’7”) / 3.63m x 3.08m (11’11” x 10’1”)
Featuring engineered oak flooring and a range of matching eye and base level shaker style cabinetry with granite work surfaces and up stands. Integrated dishwasher, eye level oven and microwave, five ring gas hob with extractor above, and stainless steel inset sink with drainer. Breakfast bar with seating for four beneath pendant lighting, together with ample space for a dining table. Windows to the rear and side aspects.

Utility Room
4.82m x 1.79m (15’10” x 5’10”)
Tiled flooring with electric underfloor heating and fitted with matching eye and base level cabinetry with work surfaces over and tiled splash backs. Stainless steel 1.5 bowl sink with drainer, under counter plumbing for washing machine, window to the rear and uPVC door opening to the patio and garden.

Shower Room
Fully tiled with electric underfloor heating, fitted with WC, wash hand basin with vanity unit and mirror above, walk-in shower with sliding glass screen, window to the side aspect and extractor fan.

Bedroom One
2.90m x 2.74m (9’6” x 9’0”)
Double bedroom with engineered oak flooring, space for bedroom furniture, fitted mirrored sliding wardrobes and window to the front aspect enjoying sea views.

Bathroom
2.45m x 2.35m (8’0” x 7’9”)
Appointed with tiled floor and walls, WC, wash hand basin with vanity unit below and mirror above, panelled bath, corner electric shower with sliding glass screen, heated towel rail, window to the rear aspect and extractor fan.

Bedroom Two
2.88m x 2.74m (9’5” x 9’0”)
Double bedroom with oak flooring, ample space for furniture, fitted mirrored sliding wardrobes and window to the front aspect with sea views.

Bedroom Three
2.35m x 1.78m (7’9” x 5’10”)
Single bedroom with engineered oak flooring, space for a single bed and bedside furniture, fitted mirrored sliding wardrobes and window to the rear aspect.

Bedroom (Loft Room)
4.32m x 3.52m (14’2” x 11’7”)
A spacious double bedroom with carpet flooring, fitted wardrobes and base level drawers with work surfaces over, useful eaves storage, velux windows to the side aspects and window to the front enjoying sea views.

Annexe

Kitchen / Reception
4.14m x 1.97m (13’7” x 6’6”) / 3.25m x 2.74m (10’8” x 9’0”)
Fitted with matching eye and base level cabinetry with work surfaces, tiled splash backs and up stands. Integrated oven, four ring gas hob with extractor above, stainless steel sink with drainer, under counter plumbing for washing machine and breakfast bar with seating for two. Sliding patio door to the rear. Engineered oak flooring continues into the reception, with space for a range of seating arrangements, staircase rising to the upper level with storage below, window to the side aspect and sliding patio doors to the front enjoying sea views.

Shower Room
2.28m x 1.74m (7’6” x 5’9”)
Tiled floor and walls with electric underfloor heating, fitted with WC, wash hand basin with vanity unit below, mirror and wall lighting, shower with sliding glass screen, heated towel rail, window to the side aspect and extractor fan.

Bedroom / Gallery Landing
Carpeted flooring with space for a bed, triple aspect velux and traditional windows.

Bedroom / Study
3.77m x 3.17m (12’4” x 10’5”)
Carpet flooring with fitted base level drawers and work surfaces over, built-in storage cupboards, recessed shelving and dual aspect velux windows enjoying sea views. Ideal as a study, additional bedroom or further reception space.

External
The grounds have been arranged to create an enjoyable and private outdoor setting, with well-kept gardens offering space to relax, entertain and make the most of the coastal surroundings. A detached garden room with fitted wood-burning stove provides a highly adaptable space, well suited to a home office, studio or leisure room. The swim spa adds a further lifestyle feature, while driveway parking for up to three vehicles and a garage provide practical day-to-day convenience.

Location
Freshwater East is a well-regarded seaside village set within the Pembrokeshire Coast National Park, known for its wide sandy beach, scenic bays and access to some of the county’s finest coastal walks. The village offers parking facilities, public conveniences and the popular Freshwater Inn. The historic town of Pembroke lies approximately four miles away, providing a broader range of shops, services and amenities, with public transport links connecting neighbouring towns and villages including Pembroke Dock and Lamphey. The Wales Coast Path also passes through the area, making it an excellent base for those who enjoy the outdoors.

Floor Plans

EPC

Request Further Details

Or arrange a viewing