Search Properties

Steynton Road, Steynton, Milford Haven, SA73

Pembrokeshire

£325,000

4 x 2 x
Department:
Sales
Reference:
29368069
Type:
Detached House
Availability:
Sold STC
Tenure:
Freehold
Council Tax Band:
E

Property features

  • Four-bedroom detached home offering excellent modernisation potential.
  • Spacious reception rooms with dining room and conservatory.
  • Private rear garden with lawn, planting, and patio seating area.
  • Driveway parking, integral garage, and strong kerb appeal.
  • Close to Milford Haven Marina and Pembrokeshire’s scenic coastline.
  • No onward chain.

Summary

This four-bedroom detached residence on sought-after Steynton Road offers a rare opportunity for modernisation, with spacious interiors, a practical family layout, and a private garden. Set back from the road with strong kerb appeal, the property includes multiple reception areas, integral garage, and ample parking. Positioned close to Milford Haven’s marina and the stunning Pembrokeshire coastline, it presents an excellent prospect for those looking to create a bespoke home in a highly desirable location.

Description

Occupying a desirable position along sought-after Steynton Road, this substantial four-bedroom detached residence presents an exceptional opportunity for those seeking a modernisation project. Offering generous living spaces, well-proportioned bedrooms, and a private family garden, the property is ideally placed for convenient access to local amenities and coastal attractions.

The accommodation is approached via a uPVC front door into a welcoming entrance hallway, complete with useful storage and internal access to the garage. The principal reception room is notably spacious, with scope to create a versatile living area. This flows into a dining room well suited to family gatherings, and further into a conservatory overlooking the rear garden. The kitchen, currently fitted with solid units and work surfaces, provides ample potential for redesign and includes a side door leading to the garden. The first floor is arranged around a galleried landing, giving access to three double bedrooms, a single bedroom, and a generously sized family bathroom. The layout offers practicality for family living while allowing significant scope for reconfiguration or upgrading to meet modern standards.

Externally, the property is set back from the road, framed by entrance pillars and a driveway providing parking for several vehicles. The gardens are well defined, with lawns, mature planting, a greenhouse, and a corner patio offering a pleasant seating area.

Milford Haven is renowned for its coastal charm, with the nearby marina providing an array of restaurants, cafés, and leisure facilities. The town also serves as a gateway to Pembrokeshire’s spectacular coastline, with scenic walking trails and historic sites within easy reach. This property represents an outstanding opportunity for purchasers wishing to create a bespoke family home in one of West Wales’ most attractive locations.

Additional Information:

We are advised that all mains services are connected, with mains gas central heating.

Council Tax Band:

E (£2,019.97)

Details

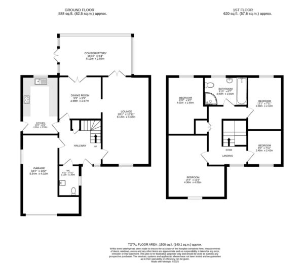
Entrance Hallway
uPVC doors open into the entrance hallway with carpet underfoot, stairs rising ahead, and access to all principal rooms. Practical under stairs storage is provided.

Cloakroom / WC
2.12m x 1.49m (6’11” x 4’11”)
Fitted with a WC and pedestal wash hand basin with tiled splash back and wall-mounted mirror. Side aspect window providing natural light.

Garage
5.54m x 4.02m (18’2” x 13’2”)
Accessible from the main house, the integral garage benefits from power, lighting, and an up-and-over door. The central heating boiler is housed here, along with plumbing for a washing machine, offering a versatile space for storage or utility use.

Kitchen
4.01m x 2.53m (13’2” x 8’4”)
Tiled floor with a range of matching wall and base units, worktops, and tiled splash back. Space for under-counter fridge and freezer, plumbing for a dishwasher, and provision for a freestanding gas cooker. A 1.5 bowl sink with drainer is set beneath the rear-facing window, with a door opening directly to the garden.

Dining Room
2.98m x 2.97m (9’9” x 9’9”)
Carpeted with space for a dining table and dressers. French doors open into the conservatory, while an archway links directly to the lounge.

Conservatory
5.12m x 2.85m (16’10” x 9’4”)
A bright and versatile space with tiled floor and uPVC windows to three aspects. Fitted with ceiling fans with integrated lighting and French doors leading into the lounge. Enjoys pleasant garden views and creates an ideal area for entertaining.

Lounge
6.13m x 3.32m (20’1” x 10’11”)
Well-proportioned reception room laid with carpet, offering generous space for seating and furnishings. A gas fire provides a focal point, while the large front-facing bay window brings in natural light. TV connection point.

First Floor

Landing
Galleried landing with carpet underfoot, airing cupboard, and front aspect window. Access to all bedrooms and family bathroom.

Bedroom One
4.01m x 2.80m (13’2” x 9’2”)
Double bedroom with carpet underfoot, space for wardrobes and additional furniture, and rear-facing views across the garden.

Family Bathroom
2.99m x 2.01m (9’10” x 6’7”)
Four-piece suite comprising WC, wash hand basin, panelled bath, and corner shower enclosure with electric shower. Carpeted with a rear-facing window and space for tall storage cabinetry.

Bedroom Two
3.68m x 2.42m (12’1” x 7’11”)
Carpeted double bedroom with space for wardrobes and rear aspect window. Loft hatch access.

Bedroom Three
4.36m x 4.02m (14’4” x 13’2”)
Spacious double bedroom with carpet underfoot, ample room for further furniture, and TV connection point. Front-facing window.

Bedroom Four
2.45m x 2.42m (8’0” x 7’11”)
Carpeted bedroom suitable as a small double or single, with front aspect window.

External
The property is set back from the road with strong kerb appeal, marked by front pillars and a driveway providing ample parking for multiple vehicles. A side gate leads to the rear, where a concrete path surrounds the property with manageable lawns, established flower beds, mature shrubs, greenhouse, and a corner patio ideal for seating.

Floor Plans

EPC

Request Further Details

Or arrange a viewing