Lighthouse Drive, Llanstadwell, Milford Haven, SA73
Pembrokeshire
£600,000 Guide Price
Property features
- Elevated position with panoramic coastal views over the surrounding landscape.
- Meticulously renovated in 2022 to an exceptional standard throughout.
- Bespoke Ratford Bridge kitchen with Masterclass cabinetry, quartz worktops and high-end appliances.
- Three en-suite double bedrooms, including principal suite with balcony and dressing room.
- Landscaped double plot with multiple patios, gazebo, and outdoor lighting.
- Double garage, ample parking, EV charging points, solar panels and external power sockets.
- No Onward Chain.
Summary
Occupying an elevated double plot in the sought-after village of Llanstadwell, this exceptional detached residence has been meticulously renovated to a superb standard. Designed to meet the demands of modern family living, it offers expansive, beautifully appointed interiors, uninterrupted coastal views, and a landscaped garden setting with multiple terraces ideal for entertaining. Key features include a bespoke kitchen by Ratford Bridge, three en-suite double bedrooms, and a luxurious principal suite with private balcony and dressing room. With ample parking, a double garage, and EV charging, this is a rare turnkey opportunity in a highly desirable coastal location within easy reach of local amenities and marina facilities.
Description
Meticulously renovated and completed in 2022, this outstanding detached residence with no onward chain, occupies an elevated position in the sought-after village of Llanstadwell and presents a rare turnkey opportunity. Designed for modern family living, the property offers generous proportions, an exceptional standard of finish throughout, panoramic coastal views, and landscaped gardens with multiple patio areas ideal for entertaining.
A spacious and welcoming entrance hall sets the tone, featuring a striking gallery landing and a bespoke stained-glass window that floods the space with natural light. Statement pendant lighting and considered detailing create an impressive introduction. At the heart of the home is a beautifully appointed kitchen, crafted by the renowned master joiners at Ratford Bridge. Fitted with Masterclass cabinetry, quartz work surfaces, high-specification integrated appliances, and a solid oak breakfast bar beneath pendant lighting, the space is both elegant and practical. A feature bay window to the front frames views over the gardens and coastline, while providing a bright dining area. The main lounge is equally impressive, featuring a Welsh slate hearth and log burner, with sliding doors opening directly onto the garden and patio – perfect for relaxed indoor-outdoor living. A formal dining room also opens to a covered patio at the rear, ideal for BBQs and year-round entertaining. Also on the ground floor is a utility room, a sleek shower room, a versatile office space (adjoining the garage), and a separate study that could serve as a fourth double bedroom if required.
Upstairs, the gallery landing offers additional storage and leads to three generously proportioned double bedrooms, each with fitted wardrobes and contemporary en-suite facilities. The principal bedroom is a highlight, featuring a walk-in his-and-hers dressing room and a luxurious en-suite bathroom with two-person freestanding bath and walk-in shower. Sliding doors open to a private balcony with uninterrupted water views that change beautifully throughout the seasons.
Externally, the property is set within an expansive double plot, with wraparound lawns bordered by mature hedging for privacy. A large driveway provides ample parking and access to the double garage via electric up-and-over doors. EV charging points and external power sockets add further convenience. To the front, a covered patio offers a sheltered seating area, while pathways lead to a side patio where a stunning cedar-framed gazebo provides the perfect setting for al fresco dining – complete with outdoor mood lighting and panoramic views. To the rear, a shaled area features raised planters and a garden shed, further enhancing the outdoor space.
Llanstadwell is a picturesque waterside village on the edge of Milford Haven and Neyland. The renowned Ferry Inn restaurant is within walking distance, while local amenities including schools, GP surgeries, chemists, and shops are a short drive away. The nearby Milford Haven and Neyland marinas offer year-round appeal and a variety of leisure options.
Additional Information:
The property benefits from a 12-panel solar energy system, with panels feeding into both the mains electricity and hot water supply via an Eddi solar diverter. Heating and hot water are provided by a Worcester combi-boiler, fuelled by mains gas. The property is connected to mains drainage, while rainwater is directed to private soakaways, further reducing water usage and bills. A comprehensive CCTV system is installed, comprising five external cameras linked to a central control hub with display screen.
What3Words:
blows.wobbles.unloading
Disclaimer
Anti-Money Laundering Compliance:
In accordance with current Anti-Money Laundering regulations, purchasers will be required to provide proof of identity and address at an appropriate stage of the transaction. Your cooperation will be appreciated to ensure the sale process proceeds without unnecessary delay. Sales
Particulars:
These particulars are intended to provide a general overview of the property and do not constitute any part of an offer or contract. Whilst every effort has been made to ensure accuracy, prospective purchasers are advised to satisfy themselves as to any matters of particular importance prior to making arrangements to view or proceed further.
Measurements:
All measurements, distances and areas provided are approximate and given for guidance purposes only. They should not be relied upon as exact and may not be to scale.
Services and Appliances:
We have not tested any services, systems, fixtures or appliances within the property. Buyers are advised to undertake their own inspections, surveys and investigations to confirm their condition and suitability before committing to a purchase
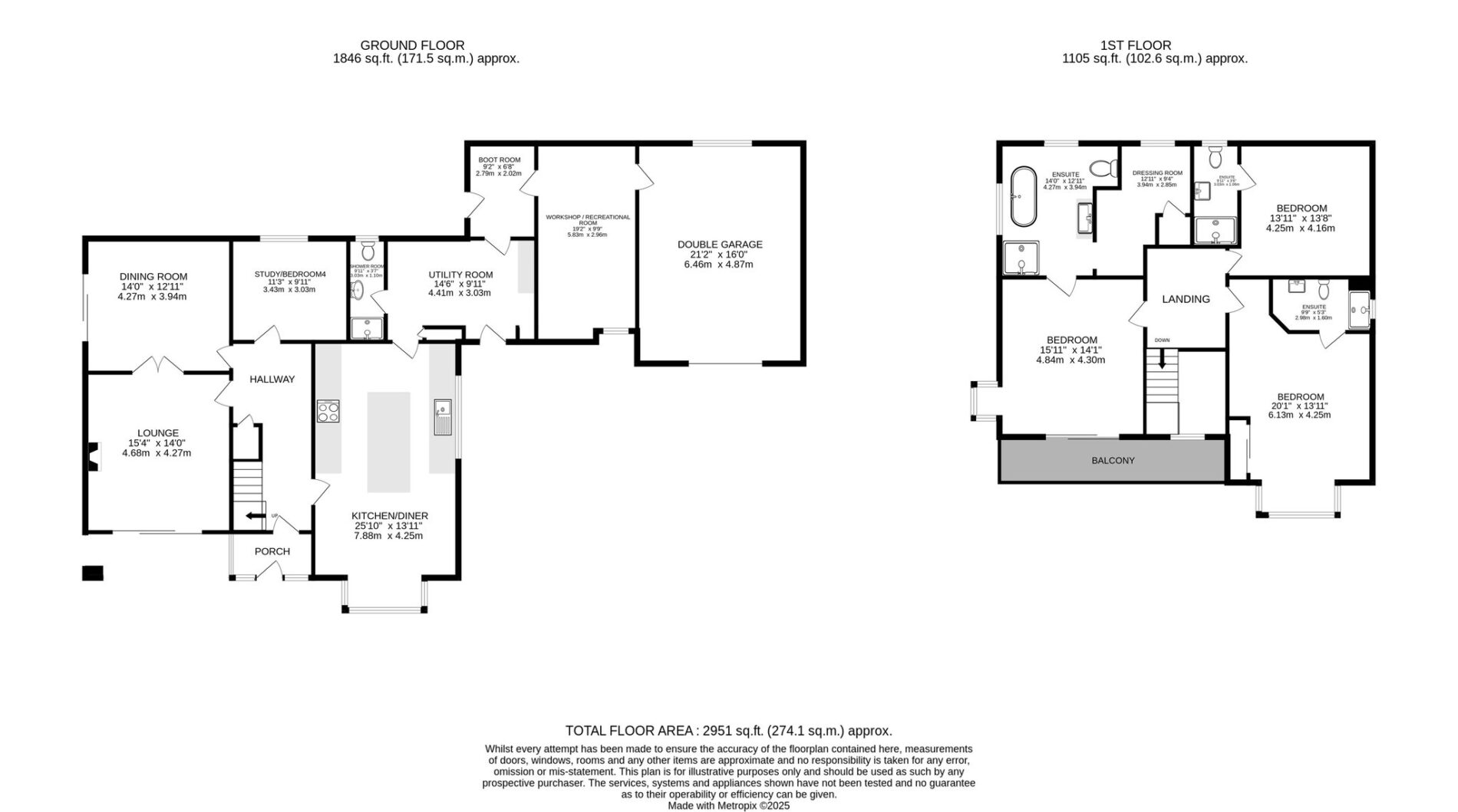
Details
Entrance Porch
A composite front door, surrounded by uPVC windows, opens to a welcoming porch with tiled flooring. The wood-effect composite panelling and tongue-and-groove ceiling enhance the space, while a solid wood door leads into the hallway.
Hallway
Tiled flooring creates a seamless transition into the heart of the home, complemented by striking harlequin wallpaper. An oak staircase with glass balustrade ascends to the first floor, while under-stairs storage offers practicality. Doors lead to all receptions.
Kitchen
7.88m x 4.25m (25'10" x 13'11")
The kitchen features oak-effect LVT flooring and a range of bespoke, masterclass Ratford Bridge kitchen units in keeping with a refined aesthetic. The quartz worktops, upstands, and under mounted stainless steel 1.5 sink add a touch of luxury. Neff appliances include a double eye-level oven, induction hob with five rings, and an Elica extractor hood. Additional Neff appliances include a dishwasher, American fridge freezer with a water and ice dispenser, and a wine fridge. A central island, with a solid oak breakfast bar and space for two stools, is illuminated by pendant lighting. Oak shelving, wine racks, and a corner pantry cupboard are both practical and stylish. A bay window, complete with solar and electric blinds, provides panoramic views over the waterway. There is ample space for a dining table and seating.
Utility Room
4.41m x 3.03m (14'6" x 9'11)
Continuing with oak-effect LVT flooring, this space offers both base and eye-level units with worktops over, and plumbing for a washing machine and tumble dryer. Oak shelving and integrated storage add convenience, while a composite door provides access to the front aspect.
Shower Room
3.03m x 1.10m (9'11" x 3'7")
Finished with oak-effect LVT flooring and tiled walls, this contemporary shower room features a close-coupled WC, a wash hand basin with a vanity unit below, and a heated mirror above. The electric shower with a sliding glass screen and waterproof panelling, alongside a heated towel rail and extractor fan, provide comfort and functionality. A window to the rear aspect is fitted with a blind.
Boot Room
2.79m x 2.02m (9'2" x 6'8")
The boot room features tiled flooring, a tongue-and-groove bench, and a series of, traditional hooks, perfect for hanging outerwear. A uPVC door opens seamlessly to the rear patio and garden area.
Workshop / Office Area
5.83m x 2.96m (19'2 x 9'9")
This versatile space features a concrete floor and a base-level unit with a stainless steel sink. It houses the Worcester boiler, solar controls, and CCTV system. A window to the front aspect and a radiator ensure this area remains functional and well-lit.
Double Garage
6.46m x 4.87m (21'2" x 16'0")
The electric up-and-over garage door provides easy access to this generously sized double garage. Electric and lighting are connected, while attic space above offers additional storage options. A rear window enhances the garage’s light and ventilation.
Lounge
4.68m x 4.27m (15'4" x 14'0")
The lounge is elegantly appointed with soft carpeting and offers ample space for comfortable seating. A blend of harlequin wallpaper and tongue-and-groove panelling creates a relaxed yet sophisticated atmosphere. A freestanding Contura log burner, set upon a Welsh slate hearth with a concrete oak-effect mantle, enhances the room’s charm. Sliding patio doors open to the fore patio, providing stunning views over the water. The room is also fitted with a radiator and television connections for added convenience. Double oak-glazed doors lead to the dining room.
Dining Room
4.27m x 3.94m (14'0" x 12'11")
This generously sized dining room features tiled flooring and offers an ideal space for entertaining. The room comfortably accommodates a large dining table, while sliding patio doors open to a side decking area with a covered gazebo and outdoor seating. A radiator ensures a comfortable atmosphere year-round.
Bedroom Four / Study
3.43m x 3.03m (11'3" x 9'11")
Currently configured as an office, this flexible room can also serve as a double bedroom. The potential for en-suite facilities exists if the wall is removed. With a window to the rear aspect, television and internet connections, and a radiator, this space is both functional and versatile.
First Floor
Gallery Landing
The oak staircase with a glass balustrade leads to a gallery overlooking the entrance hallway. A feature stained-glass lighthouse window, with a solar blind, creates a striking focal point. The feature pendant lighting further enhances the space, and doors lead to the bedrooms. An integrated storage cupboard and radiator completes the landing.
Master Bedroom
4.84m x 4.30m (15'11" x 14'1")
This expansive double bedroom offers ample space for both a king-size bed and additional bedroom furniture. Sliding doors lead to the veranda, with panoramic windows offering stunning water views. A window to the side aspect features a fitted blind and window seat. A radiator and television connections add to the room’s appeal
En-Suite Bathroom / Dressing Room
4.27m x 3.94m (14'0" x 12'11") / 3.94m x 2.85m (12'11" x 9'4")
The luxurious en-suite features porcelain tiled floors and fully tiled walls. The space includes a WC, a floating wash hand basin with a vanity unit below, and a mirrored wall with integrated lighting. The walk-in shower with a rainfall head and sliding glass screen offers a spa-like experience. A freestanding dual bath, with a tap and shower head attachment, boasts beautiful water views. A heated towel rail, windows to both side and rear aspects (with electric blinds), and an extractor fan ensure comfort. The adjacent dressing room, with carpeted flooring, includes his-and-her clothes racks, shelving, an airing cupboard, and a window to the rear aspect.
Bedroom Two
6.13m x 4.25m (20'1" x 13'11")
This expansive double bedroom features a carpeted floor and ample space for bedroom furniture. The bay window, with fitted blinds, offers panoramic water views. Built-in wardrobes, television connections, and a radiator complete the room.
En-Suite Shower Room
2.98m x 1.60m (9'9" x 5'3")
The en-suite features tiled flooring, tongue-and-groove panelling, and WC. The wash hand basin, with a vanity unit below, is complemented by a full-length mirror with lighting. The walk-in shower with waterproof panelling and a sliding glass screen, along with a heated towel rail and integrated cupboard, offers modern convenience. A window to the side aspect, extractor fan, and radiator complete the space.
Bedroom Three
4.25m x 4.16m (13'11" x 13'8")
This expansive double bedroom offers a carpeted floor and ample space for bedroom furniture. A window to the side aspect, with television connections and a radiator.
En-Suite Shower Room
3.03m x 1.06m (9'11" x 3'6")
This en-suite shower room features composite tiled flooring, a close-coupled WC, a wash hand basin with a vanity unit below, and a mirror with lighting. The shower, with a sliding glass screen, and heated towel rail enhance the functionality. An extractor fan and window to the side aspect with a fitted blind complete the space.