Search Properties

James Street, Neyland, Milford Haven, SA73

Pembrokeshire

£209,950 Guide Price

3 x 1 x 2 x
Department:
Sales
Reference:
29533176
Type:
Terraced House
Availability:
Sold STC
Tenure:
Freehold
Council Tax Band:
D

Property features

  • Attractive three-bedroom end of terrace home in the popular village of Neyland
  • Contemporary open-plan kitchen with central island and stylish finishes
  • Spacious lounge and dining area with feature fireplace
  • Three well-appointed bedrooms, including two doubles with fitted storage
  • Landscaped rear garden with pergola terrace, parking and secure gated access
  • Conveniently positioned for Neyland Marina, local amenities, schools, and scenic coastal walking trails

Summary

Situated in the popular village of Neyland, this attractive three-bedroom end of terrace home offers modern, well-presented accommodation with generous outdoor space. Designed for practical family living, the property features contemporary finishes and a naturally flowing layout. The enclosed rear garden is thoughtfully landscaped with defined seating, lawned and parking areas, while local shops, schools, the marina and scenic walking trails are all within easy reach.

Description

Situated in the popular village of Neyland, this attractive three-bedroom end of terrace home offers an excellent standard of presentation, thoughtfully arranged accommodation and generous outdoor space, all within easy reach of local amenities and transport links. Designed with practical family living in mind, the property features modern finishes and a layout that flows naturally between the main living areas.

The ground floor is arranged to provide a sociable open-plan living and dining area centred around a feature fireplace, creating a welcoming environment for both everyday use and entertaining. The kitchen is a focal point of the home, fitted with contemporary cabinetry and a central island with breakfast seating, offering a stylish and functional space for cooking and informal dining. A well-appointed family bathroom is also located on this level, complete with a walk-in shower and separate bath. Upstairs, the property offers three bedrooms, arranged to include two doubles and one single. The larger rooms benefit from built-in storage and excellent natural light, providing comfortable and practical accommodation.

The property occupies a private and securely enclosed plot. The rear garden has been attractively landscaped across multiple levels to offer defined areas for outdoor dining, relaxation and practical use. A flagstone patio leads to a lawned section and a raised pergola seating area, while a further section provides off-road parking for multiple vehicles, a large storage shed and an additional enclosed storage area, all accessed via a secure gate.

Neyland is a well-regarded village with a vibrant marina, local shops, schools, sports clubs and leisure facilities. The property is ideally positioned for access to Milford Haven, Pembroke and Haverfordwest, and is close to the Brunel Trail, a scenic walking and cycling route through the Westfield Pill Nature Reserve into Haverfordwest.

Additional Information:

We are advised that all mains services are connected with the property benefiting from gas central heating.

Council Tax Band:

D (£1,651.97)

Details

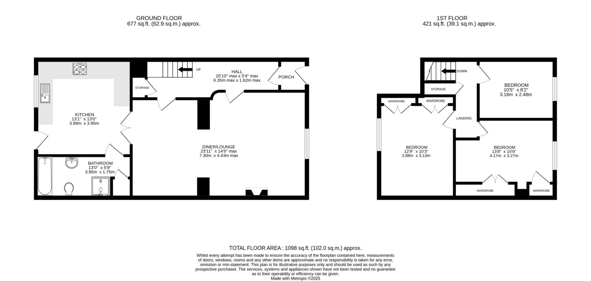
Porch
Entered via a uPVC front door this tiled porch is ideal for shoe and outerwear storage.

Hallway
6.35m x 1.62m (20' 10" x 5' 4") MAX
This expansive hallway features tiled flooring, access to all principal rooms, and a staircase to the upper level with integrated storage.

Lounge/Diner
7.30m x 4.43m (23' 11" x 14' 6") MAX
This generous open-plan living and dining area, accessed via a part-glazed oak door, features LVT flooring throughout. The dining area accommodates a table and chairs with pendant lighting, while the lounge offers versatile seating around a stone fireplace with gas fire, enhanced by wall lighting and a front-facing window.

Kitchen
3.99m x 3.95m (13' 1" x 13' 0")
Accessed via glazed oak doors, this contemporary kitchen features gloss and larder-style cabinetry with marble-effect worktops and matching up stands. A central island includes a breakfast bar for four with integrated sockets, pendant lighting, and a feature light box. Integrated appliances comprise a dishwasher, gas oven and grill with four-ring hob, plumbing for a washing machine and dryer, and space for a freestanding fridge-freezer. A composite sink sits beneath a rear-facing window overlooking the garden, with a glazed door opening to the rear and a further door leading to the family bathroom.

Bathroom
3.95m x 1.75m (13' 0" x 5' 9")
This well-appointed bathroom features tiled flooring, a WC, vanity unit with inset basin and mirrored cabinet, walk-in shower, and separate panelled bath beneath a rear-facing window, both with marble-effect shower boards. An extractor fan, heated towel rail, and airing cupboard housing the boiler complete the space.

FIRST FLOOR

Bedroom One
3.18m x 2.48m (10' 5" x 8' 2")
Carpeted underfoot, this bedroom offers room for a single bed and freestanding furniture. A window to the fore aspect provides natural light.

Bedroom Two
1.17m x 3.27m (13' 8" x 10' 9")
Also carpeted, this double bedroom includes built-in wardrobes and space for additional furnishings, while a window to the fore aspect provides natural light.

Bedroom Three
3.88m x 3.13m (12'9" x 10'3")
With carpet underfoot, this double bedroom features built-in wardrobes. A window to the rear aspect provides views over the garden.

External
A flagstone patio adjoins the property and opens onto a central lawn, leading to a raised pergola terrace at the far end, enclosed by fence panels. Beyond lies a practical area with parking for up to three vehicles, a large storage shed, and an additional enclosed storage space. A metal gate provides secure access. On-street parking is also available at the front of the property.

Floor Plans

EPC

Request Further Details

Or arrange a viewing