Search Properties

Gorsfraith, Blaenffos, Boncath, SA37

Pembrokeshire

£580,000 Guide Price

5 x 3 x 3 x
Department:
Sales
Reference:
29398726
Availability:
For Sale
Tenure:
Freehold
Council Tax Band:
E

Property features

  • Early 1800s farmhouse in an elevated rural setting with far-reaching Preseli Hill views.
  • Renovated to an exceptional standard while retaining historic character throughout.
  • Approximately six acres including lawns, vegetable gardens, paddock and wildlife pond.
  • Generous open-plan kitchen and dining space with shaker cabinetry, oak worktops and Aga.
  • South-facing sun room designed to maximise natural light and countryside outlooks.
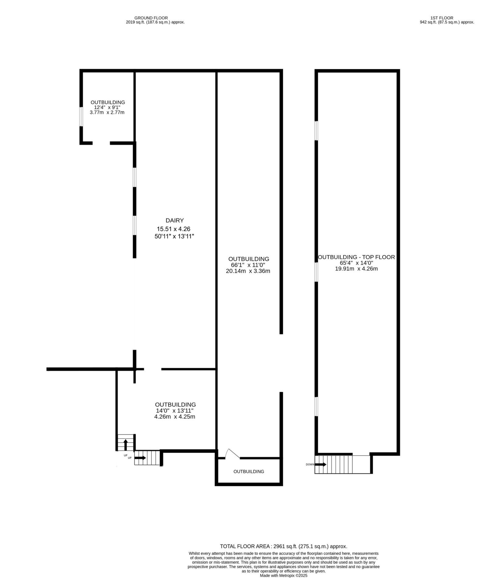
  • Adjacent former dairy barns with planning consent for three residential conversions (Planning Ref: 22/0338/PA).
  • Convenient access to Crymych, Blaenffos, Cardigan, coastal beaches and Preseli walking routes.

Summary

Gorsfraith is an early 19th-century farmhouse in an elevated rural position between Crymych and Blaenffos, enjoying uninterrupted views towards the Preseli Hills. Presented to an exceptional standard following an extensive renovation, it occupies approximately six acres, including lawns, vegetable gardens, a five-acre paddock and a dedicated wildlife pond. The adjacent former dairy barns come with full planning consent for conversion into three residential units, offering notable future potential. The location provides convenient access to nearby amenities, the walking routes of the Preseli Hills and the Pembrokeshire coastline.

Description

**Open Home | Saturday 16th May 2026 | 10:30am - 11:30am** (By Appointment Only)

Gorsfraith enjoys a peaceful and elevated rural position between Crymych and Blaenffos, offering uninterrupted views towards the Preseli Hills. Dating from the early 1800s and now presented to an exceptional standard following an extensive renovation, the property occupies approximately six acres of gardens, paddock and natural habitat. The result is a well-finished, characterful home with notable future potential and a setting that captures the essence of Pembrokeshire countryside living.

The layout has been designed to work seamlessly for family life, with a clear distinction between sociable ground-floor spaces and well-arranged bedrooms above. At the heart of the home is a generous open-plan kitchen and dining area, where shaker-style cabinetry, oak worktops, a central island and the red Aga combine to create a practical and welcoming environment. The terracotta herringbone flooring adds depth and warmth, complementing the building’s historic character. French doors open into the large south-facing sun room, a space designed to maximise the far-reaching views and draw natural light throughout the day. To the front of the property, the living room occupies the oldest part of the house. With its impressive inglenook fireplace, exposed stonework and original timber beam, it remains an inviting and atmospheric room year-round. Completing the ground floor is a useful utility and shower room placed conveniently next to the staircase. Heading upstairs, the traditional balustrade provides a subtle nod to the building’s period origins. The naturally lit landing leads to five bedrooms, each with its own aspect across the gardens or surrounding countryside. A well-appointed family bathroom serves this level.

The land extends to approximately six acres and is arranged to offer both practical use and attractive outdoor space. Nearest the house, lawned areas and terraces provide several options for seating and dining, forming a natural extension of the main living areas. A productive vegetable garden with raised beds is positioned close to the sun room for convenient kitchen access. Beyond the immediate gardens lies a fenced paddock of around 5 acres, suitable for grazing, recreation or further landscaping. At the far end of this field sits a dedicated wildlife pond. This area has been sensitively managed to enhance biodiversity and creates a peaceful natural habitat that forms a distinctive element of the wider landholding. Parking is available to the front and side of the house, as well as beside the outbuildings.

The former dairy barns offer significant future potential. Full planning consent has been granted for conversion into three residential units, providing a total of six bedrooms and five bathrooms. The approved plans include a ground source heat pump, solar arrays and a triple garage with wood store. Designed by Roger Bell of Bell Designs, the scheme focuses on sustainability and complements the careful restoration of the main farmhouse, creating attractive opportunities for multi-generational living or holiday letting.

Located around a mile from Crymych and Blaenffos, the property offers easy access to essential amenities including convenience stores, a chemist, butcher, petrol forecourt, cafés and schooling. Cardigan sits approximately 8 miles away, providing a broad mix of independent and national retailers, restaurants and cultural venues. The Pembrokeshire coastline — including Newport and Poppit Sands — is roughly 9 miles to the west, offering excellent beaches and coastal walking routes. The nearby Preseli Hills deliver extensive trails, open vistas and a landscape steeped in history. Gorsfraith offers a beautifully restored farmhouse in a quiet yet accessible rural setting, with expansive views, extensive land and valuable planning permission for future development. The combination of character, condition and potential makes it an appealing opportunity for those seeking an established countryside home with room to grow.

Vendors Insight:

“I first viewed this farmhouse in August 2020 and knew very quickly that it was somewhere special. Over the years I’ve enjoyed bringing it back to life, from the larger renovation works to the smaller details that have made it feel truly my own. The gardens, arranged in separate areas and full of colour for much of the year, have been a real joy, as has growing our own produce and re-wilding the pond area, which now attracts an array of wildlife. The setting has offered endless opportunities for walking, exploring woodland and spending time on the river, and the local community has been wonderfully welcoming. Indoors, the character of the house has always shone through — especially in the oldest part of the building — and many memorable moments have been shared here. I’ll miss the morning light through the hallway, the views across the hills, and evenings under the night sky, often enjoyed from the wood-fired bath or by the firepit. It has been a place of real warmth and happiness.”

Service Information:

We are advised that the property is connected to mains electricity and mains water. Heating is provided via an oil-fired central system, and drainage is to a private septic tank. Planning Ref: 22/0338/PA.

What3Words:

///prime.tunnel.durations

Council Tax Band Band:

E (£2,019.97)

Details

Sun Room
3.00m x 8.60m (9'10" x 28'2")
Extending along the south-facing side of the house, this generous sun room has been designed to maximise both light and outlook. The combination of full-height glazing and overhead skylights creates a bright environment throughout the day, while French doors open directly to the garden, making it an ideal space for year-round enjoyment. The tiled flooring provides a practical finish, and the length of the room allows for distinct seating or dining areas while still feeling open and connected to the surroundings.

Lounge
4.30m x 4.60m (14'1" x 15'1")
The lounge occupies the oldest section of the house, where its character is immediately evident in the substantial inglenook fireplace housing a wood-burning stove. Exposed stonework, a timber beam and a practical log store contribute to the room’s heritage feel, while the natural light keeps the space bright throughout the day. Its generous proportions allow for a variety of seating arrangements, making it well suited to both relaxed evenings and more sociable occasions.

Snug
0.95m x 1.60m (3'1" x 5'3")
Tucked to the side of the lounge, this compact recess forms a characterful nook that lends itself well to reading or a quiet moment away from the main living areas. Its placement adds architectural interest and creates a cosy additional area within the overall living space.

Shower Room / Utility Space
A neatly arranged shower room featuring a corner enclosure, WC and wash basin. The fitted cabinetry provides welcome storage, while the dual frosted windows maintain privacy without compromising daylight. Tiled flooring and part-tiled walls offer a smart, easy-to-care-for finish, with a washer/dryer also installed.

Kitchen / Dining Room
4.20m x 10.00m (13'9" x 32'10")
This expansive kitchen and dining area forms the functional centre of the house. Shaker cabinets, oak worktops and a red AGA with separate oven and hob create a focal point, complemented by a central island that offers additional workspace and breakfast seating. Installed amenities include a fridge, freezer and dishwasher with the terracotta herringbone floor adding warmth and character. The dining area comfortably accommodates a large table and opens directly to the sun room via french doors, giving the space a sociable feel and a seamless link to the grounds.

Hallway
The hallway establishes a welcoming introduction to the home, linking the principal ground-floor rooms with a sense of openness. Its layout encourages a natural flow through the property, with deceptively large under stairs storage for added convenience and practicality.

First Floor

Landing
3.25m x 3.75m (10'8" x 12'4")
A spacious landing illuminated by a feature window, offering a pleasant outlook and giving access to all first-floor rooms. The traditional balustrade adds a subtle nod to the building’s period origins with a storage cupboard also available.

Family Bathroom
A well-proportioned bathroom equipped with a claw-foot roll-top bath and a separate shower enclosure, alongside a pedestal basin and WC. The finish combines part-tiled walls with wood-effect flooring to create a classic yet practical arrangement.

Bedroom One
3.15m x 4.20m (10'4" x 13'9")
This double bedroom enjoys a peaceful outlook over the surrounding landscape, enhanced by a large window that brings in plenty of natural light. Fitted carpet and a neutral presentation create a calm, understated feel, and the proportions comfortably accommodate essential furnishings without compromising space.

Bedroom Two
3.10m x 3.12m (10'2" x 10'3")
A comfortable and inviting room with a pleasant view across the land. The soft décor enhances the brightness of the space, making it suitable for use as a double bedroom, occasional guest room or a quiet home office. Its layout lends itself well to a variety of arrangements including a guest bedroom, nursery or work from home office space.

Bedroom Three
2.00m x 4.20m (6'7" x 13'9")
Benefitting from two windows, this bedroom enjoys excellent natural light and far-reaching countryside views. The extended length of the room allows flexibility in how the space is used, and the soft carpeted finish contributes to a warm, relaxing atmosphere.

Bedroom Four
2.00m x 4.34m (6'7" x 14'3")
This double bedroom features decorative panelling that adds depth and character. The outlook over the garden provides a pleasant backdrop, and the inclusion of en-suite facilities makes it particularly well suited for guests or older children. Its proportions and finish create a balanced, comfortable space.

En-Suite Cloakroom
Attached to Bedroom Four, this compact en-suite provides a WC and pedestal basin with tiled splash back. The terracotta-style flooring gives a traditional touch and ensures durability.

Bedroom Five
2.30m x 3.00m (7'6" x 9'10")
With exposed beams adding definition and charm, this room offers a cosy yet functional layout. The window brings in good natural light and offers countryside views, making the room adaptable as a child’s bedroom, guest space or study depending on requirements.

Floor Plans

EPC

Request Further Details

Or arrange a viewing